概要:南京萬科朗拾G04項目地塊除濕機配套項目由凈松中標,本次供應的除濕機為凈松480L吊頂式除濕機,具備環境濕度顯示功能,濕度控制精度在5%,智能除濕,充分滿足了項目方需求,這也是繼金基地產后凈松除濕機進軍高品質樓盤項目又一經典案例。
項目介紹
南京萬科朗拾靠近10號線小行站,旁邊河西大街+軟件大道,項目打造建面約109㎡、139㎡兩種戶型,均三房起步,滿足了不同時期家庭的置業需求。項目總用地面積約26602.62平方米,地塊規劃用地性質為R2二類居住用地,1.0<容積率<2.8,建筑高度≤100m,建筑密度≤25%,綠地率≥30%。項目規劃總建筑面積約103487平方米,其中地上建筑面積約74487平方米,主要建設5棟高層住宅、4棟低層配套用房等;地下建筑面積約29000平方米,主要建設2層地下室,包含人防設施、配建停車庫及其他輔助設施。

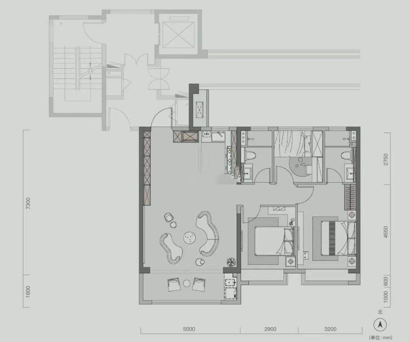
萬科朗拾109㎡戶型圖
萬科朗拾作為萬科高品質樓盤經典項目之一,在項目設備配套選擇上也力求精益求精,包括家電配套設備等采用了行業頭部知名品牌商,此次凈松環境科技中標萬科朗拾除濕機配套項目充分體現了項目方對凈松品質的認可,這也基于凈松多年來對產品品質的嚴格把控,以及強大后臺服務能力的支撐,品質方面:每臺設備都是經過嚴格的測試,通過測試后的產品才可流入市場。服務方面:全天候的服務模式,涉及產品品質、安裝指導、售后服務等方面都能夠快速響應,高效率地解決產品方面問題。凈松環境科技除濕設備頻頻受到高端地產商的青睞還有另一重要的原因是,凈松多年來在行業中積累的優質口碑,以及眾多知名項目案例的支撐。

萬科朗拾項目樓盤效果圖
直擊生產現場
從前期項目確定,到設計出圖、備料、生產、組裝、測試打包等一系列環節均展現出了凈松團隊的專業高效,有從事空調除濕領域多年的專業技術人員現場指揮生產,以及品質部門核驗監督,整個流程穩中有序地進行,為最終產品的成功交付奠定了堅實的基礎。
產品優勢介紹
國際知名品牌壓縮機:高轉速,強勁動力輸出,除濕效能大幅提升,改良部件結構,打造更輕音
內螺紋親水兩器:內螺紋銅管,冷凝面積大大增加,0.1mm親水鋁箔材料,快速冷凝,效率大幅度提升
以及5%濕度精確控制,傳感器故障指示功能,定時關機功能,自動化霜功能,環境濕度顯示等功能。
凈松吊頂式工業除濕機可以根據不同場所的大小和環境濕度,選擇適合的除濕量,避免過剩或不足;能夠有效地節約能源,降低碳排放,符合現代環保理念。
凈松簡介
江蘇凈松環境科技有限公司是以技術創新為驅動、提供宜居環境為宗旨的國家高新技術企業。公司擁有從事室內環境處理的資深專家團隊,形成了產、研、銷一體化,售前、售后全流程服務的環境科技公司。

凈松環境工廠外景
凈松環境是新風領域國家標準起草單位之一,江蘇省專精特新中小企業,擁有多項國家專利;公司配備國家級空調新風焓差實驗室、風壓實驗室、老化實驗室、噪音實驗室、動平衡實驗室等多個專業級實驗室。旗下產品覆蓋空氣消毒機、新風系統、除濕系統、恒溫恒濕機組、直膨空調機組、空氣源熱泵機組、組合式空調機組等產品,應用于醫院、隔離倉等多種醫療衛生場所,以及家庭、學校、機房、廠房、商業場所等多種場景。公司產品亦可滿足個性化定制需求,曾為2022年北京冬奧會提供服務,為眾多知名品牌服務;品牌入駐蘇寧、京東等眾多線上、線下門店,在全國擁有上百家服務及體驗中心,產品遠銷歐美、東南亞等眾多國家。

凈松環境所獲部分榮譽及資質證書
目前,凈松環境已通過ISO9001質量管理體系、ISO14001環境管理體系認證、ISO45001職業健康安全管理體系及GB/T27922五星售后認證,以及 3C、CE、UL等多項產品認證;榮獲全國環保行業質量領軍企業、全國產品和服務質量誠信示范單位稱號、校園新風優秀供應商、新風行業十大品牌、行業領跑者品牌等多項殊榮。依托領先的智慧科技,凈松科技旨在為每一個用戶提供更高效的產品,為每一個室內場景提供更優質的宜居環境。